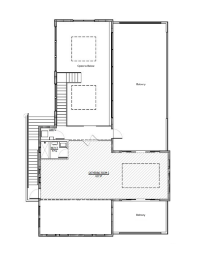
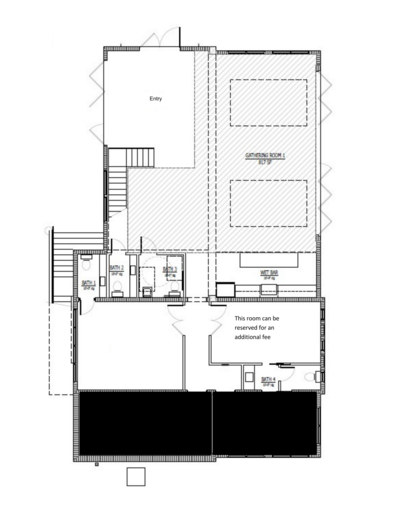
With 2,900 sq. ft. of indoor space and expansive outdoor grounds, you’ll have the freedom to create a celebration that flows naturally between both.

Just 2.9 miles from Pier Park, our venue feels like a private escape while remaining close to accommodations, dining, and the heart of 30A FL.

about
the venue

The perfect setting for gatherings all year long

bottom floor

top floor

Yes, all tours are by appointment only. Your event planner must be present during the tour. Please fill out the inquiry form to book a tour. Inquire Here

Are appointments required to take a tour?

108 Amar Place, Panama City Beach, Florida 32413

Where is The Heritage House located?

We require a licensed and insured event planner to be involved from the start of your booking through the end of your event. This ensures your celebration is managed smoothly, every detail is handled, and nothing falls through the cracks.

Why is an event planner required to use your venue?

Frequently asked questions

The Heritage House does not have a kitchen on-site. All catering vendors must bring their own equipment and prepare food either off-site or with their own on-site setup.

Is there a kitchen on site?

We welcome any vendors of your choice, as long as they are licensed and insured.
If desired, we can provide a list of our preferred vendors for your convenience.

Do you have vendor restrictions?

Indoor Capacity: 95 guests.                           
Outdoor Space: Unlimited (no set restrictions)
Our spacious outdoor yard is perfect for hosting larger gatherings and ceremonies.

What is the venue capacity?

Your event planner is responsible for ensuring all vendors complete cleanup by the designated time. All décor, rentals, and trash must be removed from the property by the end of your contracted rental period. Additional time can be purchased if needed for large events.

Who is responsible for cleanup?

Yes, alcohol may be served at The Heritage House. A licensed and insured bartender or catering vendor must handle all alcohol service. Self-service or cash bars are not permitted for liability reasons.

Can we serve alcohol at our event?

We offer on-site parking for your guests a total of 65 paved parking spots. For weekday events, no more than 2 vehicles may park on-site before 5:30 PM due to surrounding businesses. Full parking is available after 5:30 PM.

What are the parking arrangements?

LUXURY WEDDING & EVENT VENUE LOCATED ALONG 30A, HAND DESIGNED FOR YOUR "I DO".